Logo

Stadsappartement

Nieuwbouwwoning

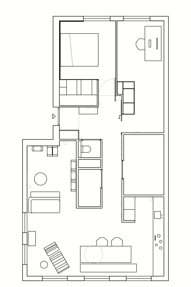
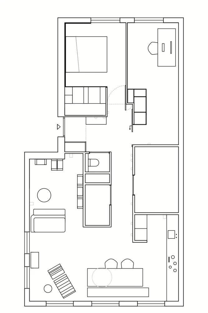
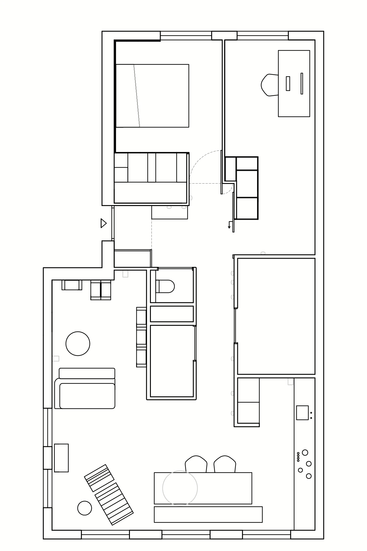
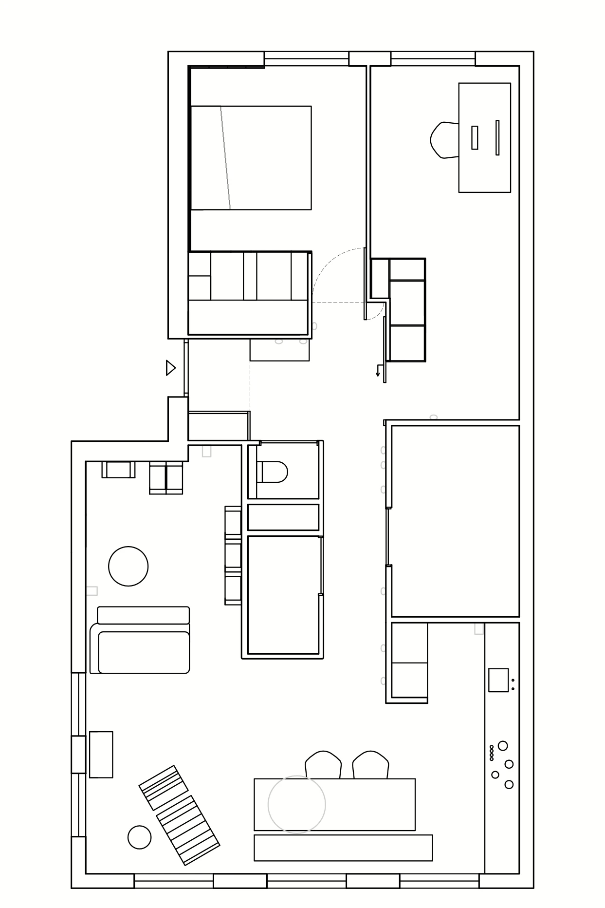
AMstudio heeft het nieuwbouwappartement volledig gestript om een licht en compact interieur te creëren. De ruimtes vloeien naadloos in elkaar over, terwijl er ook individuele plekken zijn om te ontspannen. De centrale hal fungeert als het hart van de woning en verbindt het voor- en achterdeel. Een draai- en schuifdeur, geïnspireerd door Rietveld, kan de zichtlijn openen of sluiten. Opvallend is de ruwe, donkere kern van leemstuc die als een solide element fungeert waar alles omheen draait. De keuken fungeert als één groot dressoir waaruit maaltijden worden geserveerd. De tafel met lage bank en de op maat gemaakte boekenkasten zijn een knipoog naar Manhattan, waar de bewoners eerder hebben gewoond. De zorgvuldig gekozen kleuren voegen accenten en sfeer toe aan het interieur. Kortom, deze woning is een harmonieuze samensmelting van twee geliefde werelden, waarin beide bewoners zich op hun eigen manier thuis voelen.

2011

Amsterdam Oost

90 m2