Logo

Compact Wonen in hartje Amsterdam

Japandi interieur: minimalisme en warmte

Compact wonen in Amsterdam kan verrassend groots aanvoelen. Midden in het centrum vind je dit bijzondere appartement van 47 m², volledig verbouwd, verduurzaamd en ontworpen naar de wensen van de bewoner.
Omdat hij veel reist en een periode in Tokyo heeft gewoond, moest dit huis écht als thuis voelen. Daarom is gekozen voor een Japandi interieurstijl: minimalistisch, warm en rustgevend. De eyecatcher? Een unieke kaart van Amsterdam als behang, die het appartement een persoonlijke en stedelijke touch geeft.
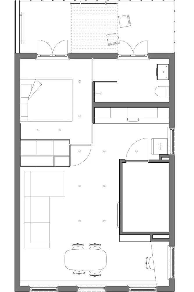
De woning is ingericht als een loft design en slim ingedeeld in verschillende compartimenten. Speciaal ontworpen kasten functioneren als wanden en zorgen voor een open, lichte uitstraling. Dankzij de zichtlijnen is er indirect contact met het dakterras, waardoor binnen en buiten naadloos in elkaar overlopen en de woning royaal oogt.

2025

47 m2

Amsterdam

Daarnaast is er een intieme werkplek gecreëerd door functies te groeperen en optimaal gebruik te maken van de ruimte. Een plek waar je je volledig kunt focussen tijdens het thuiswerken, terwijl je toch de sfeer van het hele appartement ervaart.

De materialen, kleuren en het lichtplan versterken het ontwerp. Natuurlijke materialen, neutrale tinten en minimalistische eenvoud vormen samen de basis van dit duurzame appartement in Amsterdam.

Review:

Ik had de sterke behoefte om mijn appartement in Amsterdam na 20 jaar compleet te restylen en te verbouwen naar een omgeving die beter aansluit bij mijn huidige leven en carrière. Een plek waar het fijn wonen, werken en ontspannen is, en waarin optimaal gebruik wordt gemaakt van de beschikbare ruimte. Qua stijl en lichtinval zocht ik naar een sfeer die subtiel refereert aan mijn tijd in Japan, gecombineerd met een duidelijke link naar Amsterdam en aandacht voor duurzaamheid.

Ik kwam snel bij Ariënne Matser terecht, die haar motto volledig waarmaakt: 'Jezelf kunnen zijn in een vernieuwde inspirerende ruimte'. Ariënne bood een luisterend oor, duidelijke inzichten en veel creativiteit. Gecombineerd met haar ruime ervaring, kennis van materialen en haar sterke netwerk van leveranciers en meubelmakers ontstond er een prachtige balans tussen originaliteit en vakmanschap. Het resultaat is een loft die perfect bij me past: een geweldige metamorfose na een vlot project, dat Ariënne bijzonder kundig begeleidde terwijl ik zelf gedurende de gehele verbouwing in het buitenland zat!

Martijn